注文住宅
CORPORATE
SERVICE
TOPICS
お役立ち情報
スタッフブログ
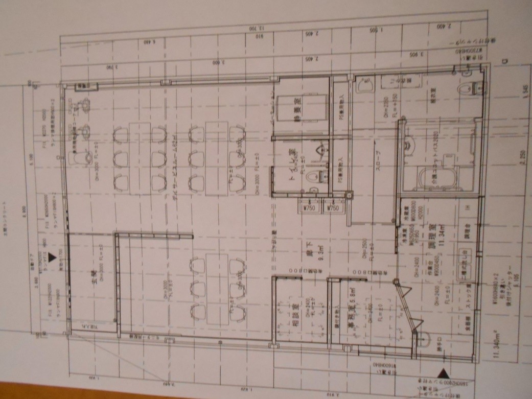
計画中のデイサービス。
空き店舗からデイサービスへの用途変更の福祉施設です。
200㎡以内の小規模でのサービスの提供を企画しました。
ゴルフシュミレーションやカラオケ等、多様な提供ができるサービスを
ご提案しております。
勿論弊社の無添加漆喰を採用します。
健康素材の心地良い空間でゆっくりと楽しんでいただけます。
(平原良子)
工務店スタッフブログ 熱海 梅園
60品種 500本近くの早咲きの梅の花が見頃になっています。 散歩に出かけて梅の香りを頂いて来ました。 (平原良子)
工務店スタッフブログ 自然素材の家
弊社の女性一級建築士、大塚の設計による企画型住宅の外観デザインです。 妻側に天然石、桁行側に漆喰と天然木の格子を贅沢に使い、異なる天然素材が上手にマッチしてい
工務店スタッフブログ 菜の花満開
本社Luminosaから車で30分ほどにある二宮町の吾妻山公園では菜の花が満開です。 頂上までは徒歩で20分ほど、小さなお子様も楽しそうに登っていました。
工務店スタッフブログ 幸運を呼ぶインテリア
北欧では古くから窓辺のインテリアとして親しまれている「サンキャッチャー」。 太陽の光が当たるとお部屋の中にキラキラと光と虹が輝き、幸せを呼ぶインテリアとして風